REQUEST A TOUR If you would like to see this home without being there in person, select the "Virtual Tour" option and your agent will contact you to discuss available opportunities.
In-PersonVirtual Tour

$ 1,299,000
Est. payment | /mo
$ 1,299,000
Est. payment | /mo
Key Details
Property Type Vacant Land
Listing Status Active
Purchase Type For Sale
Subdivision 557 - Thorold Downtown
MLS® Listing ID X12436040
Source Niagara Association of REALTORS®
Property Description
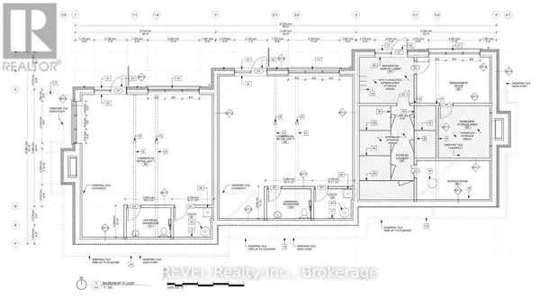
SITE APPROVED for a 9 unit building including 6 residential and 3 commercial units. This is an incredible investment opportunity located in the heart of downtown Thorold. Location is optimal as it is close to all amenities. Preliminary legwork has been done. Nothing to do but obtain a building permit. Buyer to do their due diligence with the City of Thorold for permitted uses. (id:24570)
Location
Province ON
Rooms
Kitchen 0.0
Exterior
Parking Features No
View Y/N No
Private Pool No
Building
Sewer Sanitary sewer
Others
Virtual Tour https://www.youtube.com/watch?v=gsx2nlaLtK0

"My job is to find and attract mastery-based agents to the office, protect the culture, and make sure everyone is happy! "
1816 Crowchild Trail NW # 700, Calgary, T2M, 3Y7, Canada







